
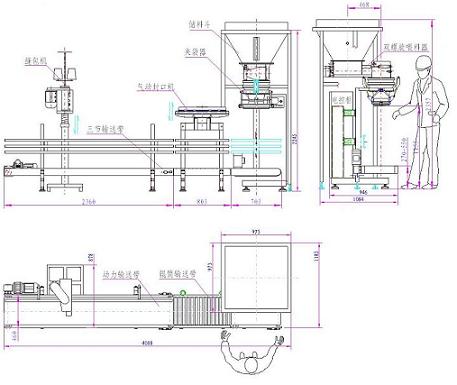
BGL-1C1半自动粉剂包装机
介 绍:本机采用当前国际流行的包装秤控制系统,高精度高速计量专用仪表,可靠性高,功能强,完全适应连续生产的要求;具有落差修正,过冲抑抑制,超差报警等功能;整机除电机、气缸、电器配件、气动元件、缝包机外其它均为不锈钢制作;设有校准程序(配有砝码),可随时方便进行校准,对长时间不用的重量飘移特别有用;螺旋可直接插拨抽出单独清洗,方便清除残料可设定时间自动双节PVC输送带(骨架为全不锈钢)轻松传递,整洁、干净、美观,可用水冲洗;特别适用GMP认证,食品卫生认证,要求抗腐蚀化工产品等的包装;半自动粉剂包装机按照国家GMP标准而设计,能自动完成计量、夹袋、充填、封口、缝包、传送等工作。
适 用:BGL-1C1半自动粉剂包装机适用于包装那些易流动或流动性极差的粉粒状物料,如奶粉、饲料、米粉、白糖、咖啡、味精、固体饮料、葡萄糖、米粉、固体医药、农药、粉粒状添加剂、染料等。
技术参考:
| 计量方式:称量式(与包装袋一并称重) 给料方式:双螺旋喂料(或振动喂料) 包装重量:5—50Kg 包装精度:≤±0.2% 包装速度:≤3bags/min |
电源:三相380V(或定制单相220V) 50—60Hz 整机功率:3.9KW 整机重量:300Kg 整机体积:4500×1600×2400mm |
整机结构图:

